地址:江苏省无锡市锡山区羊尖镇胶阳东路139号
联系人:钱先生
电话:0510-68229610
手机:138 1208 3566 / 138 1203 2272
传真:0510-68229612
邮箱:info@chinateneng.com
sales@chinateneng.com

【核心定位与产品简介】
WUFBG上气式固定床气化炉是Powermax自主研发的专业级生物质气化核心装备,获SGS、CE权威认证,技术成熟、参数可控。系统可灵活配置燃气内燃机、蒸汽锅炉、导热油锅炉ORC低温发电方案,实现生物质能源梯级高效利用,为生物质气化发电、供热、化工原料供给等全场景提供核心气化解决方案。
【核心技术】
● 四大反应环节
WUFBG系列气化炉采用上吸式固定床结构,生物质原料在炉内依次完成四个反应阶段,实现向可燃气体的高效转化:
1.干燥:高温去除原料水分,为后续反应奠定基础
2.热解:无氧环境下分解产生可燃气体、焦油及固体残渣
3.氧化:热解产物与气化剂反应,释放大量热量
4.还原:高温气体与固体碳反应,生成以可燃成分为主的气化气
● 气化剂组合
采用蒸汽与热空气组合气化剂,保障反应高效稳定,提升可燃气体产出效率与热值稳定性。
● 副产品价值
气化过程同步产出生物炭,为客户创造额外经济收益,实现原料全利用。

【技术优势】
● 高湿原料适配
可直接处理含水率最高55%的农林废弃物,无需深度干燥。原料粒径要求20-80mm,适用竹片、甘蔗渣、废木材、树皮、油棕空果串、椰壳等。

● 热电联产设计
冷煤气效率70-75%,燃气热值1200-1800 Kcal/Nm³。同步产出电力与热能,实现能源梯级利用。
● 干式净化工艺
采用干式气体净化系统,配合蒸汽+热空气气化剂,减少废水废渣排放,同时产出生物炭副产品增加客户收益。
● 模块化配置:标准化模块设计
可根据发电规模和供热需求灵活组合内燃机、锅炉、余热回收等设备。适配分散式、集中式等所有能源需求场景。
● 国际认证加持
WUFBG系统由无锡宝麦绿能科技有限公司与无锡特能机电有限公司联合研发,拥有完全自主知识产权,产品通过ISO、SGS、CE三大国际认证,核心设备自主研发生产,技术实力与产品品质获全球市场认可,为海内外项目提供稳定、专业的技术支撑。
● 运行参数可控
额定产气流量、燃气温度、灰渣去除等核心指标标准化可控,适配规模化、连续化生物质气化需求。
● 经济与环保双赢属性
作为生物质绿色能源核心装备,实现生物质能的清洁转化与利用,无额外有害排放,契合碳中和、净零排放发展需求;热电联产降低能源成本,副产生物炭增加收益;整个过程无高污染排放,助力客户实现“净零排放”,契合全球碳中和发展趋势。
● 应用场景多元
产出的可燃气体可直接对接发电、供热、工业窑炉、绿色化工等下游场景,是生物质气化全产业链的核心基础装备。

【技术参数】
| WUFBG上气式气化发电系统 | |
| 气化炉型号 | WUFBG2400-5200 |
| 气化类型 | 上气式固定床 |
| 气体净化类型 | 干式 |
| 气化剂 | 蒸汽+热空气 |
| 原料尺寸(mm) | 直径:20-80,长度:20-80 |
| 原料含水率 | ≥30%(WB),最大可达55%(WB) |
| 额定气体流量(Nm³/h) | 1,000-10,000 |
| 平均燃气热值(Kcal/Nm³) | 1,200-1,800 |
| 净化后额定热输出(Kcal/h) | 1,200,000-12,000,000 |
| 冷煤气 | ≥70-75% |
| 气化炉出口气体温度 | ≤100℃ |
| ESP出口燃气温度 | ≤45℃ |
| 灰渣去除方式 | 湿式/干式 |
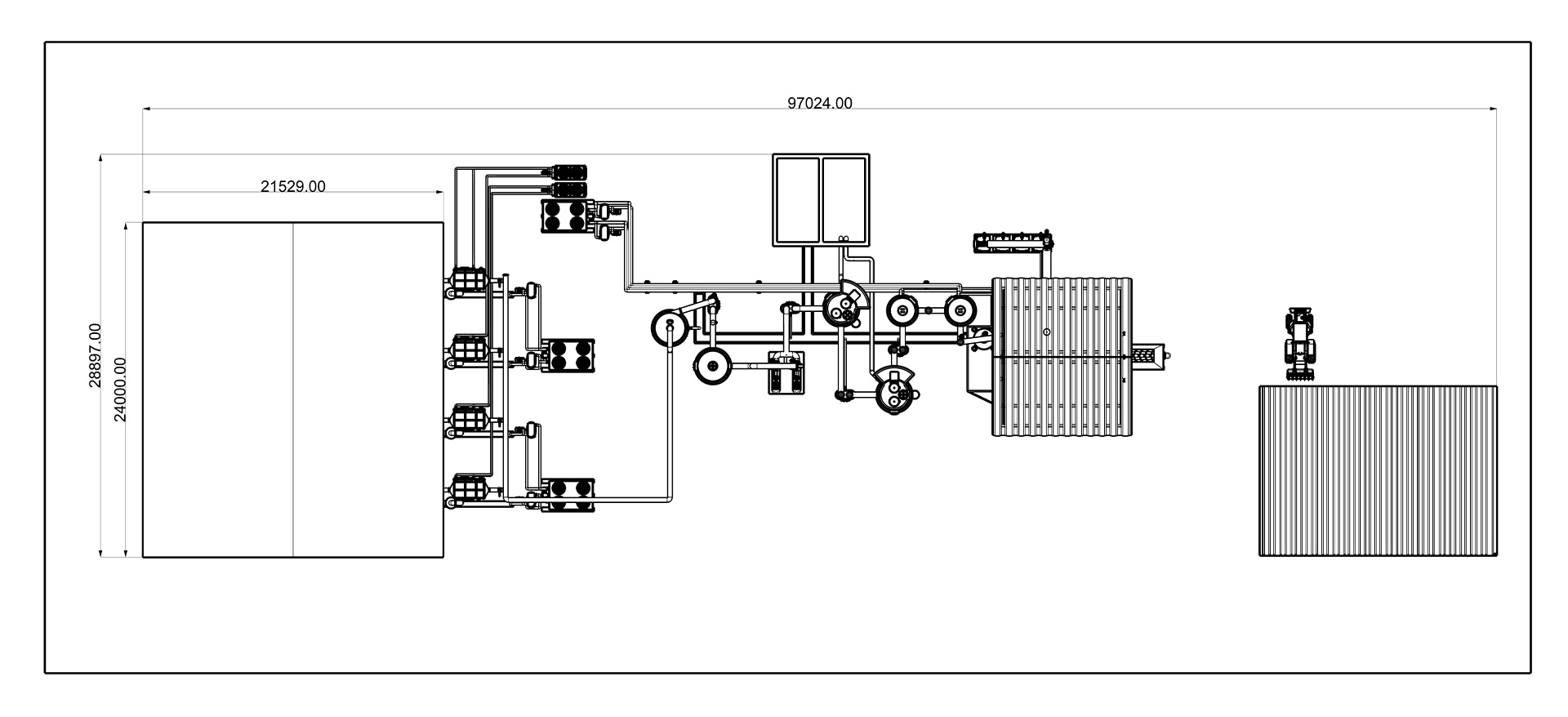
【系统尺寸】
- 正视图

- 顶视图

【多元发电方案】
依托WUFBG气化炉的燃气输出,Powermax提供多技术路线的发电方案。系统采用模块化设计,可根据客户发电规模、余热利用需求、场地条件灵活配置。
● 燃气内燃机发电
适用规模:100千瓦及以上,适合分布式电站
适用场景:村镇供电、中小型工业自备电站、原料分散型项目
技术特点:启动快、负荷响应灵活、运维便捷
典型配置:气化炉 + 燃气净化系统 + 内燃发电机组
应用价值:为中小型用户提供稳定清洁电力;气化过程同步产出生物炭,增加额外收益;以可再生能源替代化石能源,减少碳排放。
● 蒸汽锅炉发电
适用规模:兆瓦级,适合规模化集中供电
适用场景:大型气化电站、产业园区、农林废弃物集中利用项目
技术特点:单机容量大、运行稳定、热效率高
典型配置:气化炉 + 燃气净化系统 + 蒸汽锅炉 + 汽轮发电机组
应用价值:为产业园区和大型项目提供规模化清洁电力;可同步对外供热,实现热电联产;处理稻壳、秸秆等农林废弃物,实现资源化利用。
● 导热油锅炉ORC低温发电
适用规模:200千瓦至2兆瓦
适用场景:中低温余热回收、热电联产补充发电、分布式能源站
技术特点:利用余热发电、运行压力低、维护成本低
典型配置:气化炉 + 燃气净化系统 + 导热油锅炉 + ORC发电机组
应用价值:利用余热发电,实现能源梯级利用;适合热电联产项目中的补充发电;运行成本低,投资回报周期短。
【全球化落地】
● 越南木屑生物质气化电站项目
适2024年11月完成现场全面验收,正式进入发电阶段。
项目以木屑为原料,通过WUFBG系统实现清洁电力供给,为当地注入绿色动能,有效降低区域碳排放。

—————————————————————————————————————————————————————
● 菲律宾合作项目
目前稳步推进中。
依托WUFBG系统的高原料适配性与高效发电特性,打造当地生物质能源标杆项目,助力菲律宾可再生能源结构升级。
从国内技术研发到全球项目落地,WUFBG系统已完成多场景、多原料的实战验证,成为海外生物质能源项目的优选技术方案。

【全流程一站式服务】
从原料分析、方案定制、设备安装调试,到后期运维、技术升级,我们提供覆盖项目全周期的一站式服务。
技术团队深耕生物质气化领域多年,可根据客户原料特性和用能需求,定制专属解决方案,确保项目高效推进。